あっぷる長内 26号new
- 賃料
- 5.9万円
- 一戸建
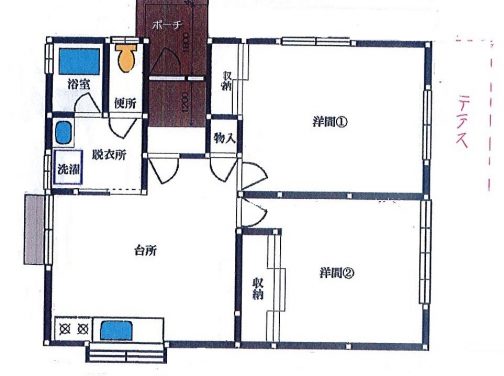
- 間取
- 2DK
- 敷金
- 5.9万円
- 礼金
- 5.9万円
- 更新料
- 7,700円
| 所在地 | 岩手県久慈市長内町23-5-6 あっぷる長内 |
|---|---|
| 交通 | JR八戸線 久慈駅 徒歩1000m バス(上長内バス 停歩7分) |
| 築年月 | 2013 | 新築/中古 | |
|---|---|---|---|
| 面積 | 64.91m² | 計測方式 | |
| バルコニー | 向き | ||
| 建物階数 | 地上1階 | 部屋階数 | |
| 部屋/区画番号 | 26号 | 総戸/区画数 | |
| 建物構造 | 木造 | ||
| 間取内容 | 洋10・洋8・台11 | ||
| 取引態様 | 仲介 | 敷地内 2台可(カーポート付) | |
| 引渡/入居時期 | 期日指定 2026/04 上旬 | 現況 | 賃貸中 |
| 周辺環境 | |||
| 設備・条件 | 楽器不可 2人入居可 ペット不可 保証人要 ガスコンロ 給湯 洗髪洗面化粧台 バス専用 シャワー ユニットバス トイレ専用 バス・トイレ別 温水洗浄便座 暖房 エアコン 室内洗濯機置き場 CATV プロパンガス 公営水道 排水浄化槽 駐車場有 フローリング | ||
| 物件番号 | apo-26 | 掲載期限日 | 2026/05/31 |
※物件掲載内容と現況に相違がある場合は現況を優先と致します。
株式会社レーベルホールディングス
〒028-0051岩手県久慈市川崎町12-3
TEL:0194-52-0041/FAX:0194-52-0042








